初期費用無料物件や保証人不要の物件も豊富にご用意!相談料無料でも申請・手続きサポート付き!

生活保護 賃貸マンション 埼玉県川口市 弥平1丁目 

川口市

生活保護賃貸マンション。埼玉県川口市弥平1丁目・埼玉高速鉄道川口元郷駅徒歩24分の生活保護の方でも賃貸可能な賃貸マンション。埼玉県川口市弥平1丁目・埼玉高速鉄道川口元郷駅周辺のお部屋を探しの方はお気軽にお問い合わせください。

物件エリア・交通情報
物件概要
  • 建物種別:マンション
  • 構造:鉄骨造
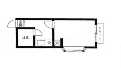
  • 間取り:2DK
  • 専有面積:35.00㎡
  • 賃料:54,000円
  • 管理費:1,000円
  • 敷金/礼金:1ヶ月/1ヶ月
  • 階層:1階部分/3階建
  • 築年数:1971年6月
  • 交通:埼玉高速鉄道川口元郷駅 徒歩24分
  • 住所:埼玉県川口市弥平1丁目

室内設備

フローリング・収納スペース・室内洗濯機置場・エアコン・シューズボックス

建築設備

都市ガス・バルコニー

キッチン

システムキッチン・ガスコンロ対応

バス・トイレ

バス/トイレ別・追焚機能

テレビ・インターネット

インターネット対応

セキュリティー設備

モニタ付インターフォン・火災警報器(報知機)

特徴

保証人不要・二人入居可・コンビニ近・ペット相談可

入居条件・補足事項
  • 保障会社加入:加入必須
  • 火災保険加入:必要
  • 入居時期:即入居可能
  • 取引形態:仲介
埼玉県川口市埼玉高速鉄道川口元郷駅
この物件への問い合わせ・内見希望の方は以下のエントリーフォームよりお問合せ下さい。


    必須お名前

    必須お名前【フリガナ】

    いずれか入力電話番号
    電話番号とメールアドレスはいずれか入力

    いずれか入力メールアドレス
    電話番号とメールアドレスはいずれか入力

    任意ご依頼内容
    【複数選択可】

    任意ご希望の間取り
    【複数選択可】

    任意ご希望の家賃

    任意入居時期

    任意生活保護受給状況

    任意希望するエリア・路線・こだわり

    任意その他・補足事項

    この物件への問い合わせ・内見希望の方は以下のエントリーフォームよりお問合せ下さい。


      必須お名前

      必須お名前【フリガナ】

      いずれか入力電話番号
      電話番号とメールアドレスはいずれか入力

      いずれか入力メールアドレス
      電話番号とメールアドレスはいずれか入力

      任意ご依頼内容
      【複数選択可】

      任意ご希望の間取り
      【複数選択可】

      任意ご希望の家賃

      任意入居時期

      任意生活保護受給状況

      任意希望するエリア・路線・こだわり

      任意その他・補足事項

      このページをシェアする
      生活保護申請からお住まいの確保・引越までお任せ下さい!

      生活保護の申請手続きからお住まい探しはもちろん、入居審査が心配な方や家賃・礼金含め初期費用が安めなお部屋をお探しの方・その他ご事情がある方でもお客様の条件に合ったお部屋をお探し致します。インターネットに掲載されている物件はもちろん非公開物件もご紹介可能です。

      ■ 生活保護申請・手続き無料サポート
      ■ 申請手続き同行サポート付き
      ■ 住まいの条件や希望を伝えるだけでOK
      ■ 来店不要(メールやLINEでご案内)
      ■ 相談料・手数料も無料
      ■ 敷金・礼金が無料物件も豊富にご用意
      ■ 審査がご不安な方もお任せ
      ■ 他社で断れた方でも大歓迎
      ■ 生活保護の受給を検討されている方もOK
      ■ プライバシー保護管理体制も万全
      ■ 電話相談:049-295-7700

      タイトルとURLをコピーしました